Заголовок:
Бокс в нишу basic E 12М белая дверь (BEF401212)
Пластиковый щиток с белой дверцей (дверью) встраиваемый в нишу на 12 модулей автомата (для автоматов) белый 12М с клеммниками
Назначение: Для монтажа модульной аппаратуры, для защиты персонала от поражения электрическим током при эксплуатации. Для дополнительной защиты помещения от пожара при самопроизвольном возгорании проводки в боксе.
Цвет: Белый
Способ монтажа : Скрытой установки
Степень защиты (IP): IP40
Количество рядов: 1
Модульная ширина (общ. кол-во модульных расстояний): 12
Материал корпуса : Пластик
DIN-рейка: Да
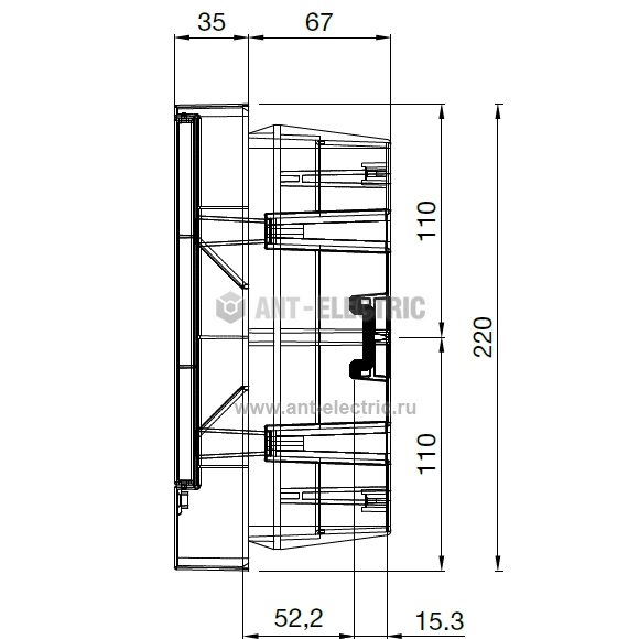
Глубина: 105мм
Высота: 220мм
Ширина: 300мм
С замком: Нет
Количество дверей : 1
Раздел: белые пластиковые встраиваемые боксы, щитки, шкаф, корпуса 12M
Производитель: ABB (АББ)







































