









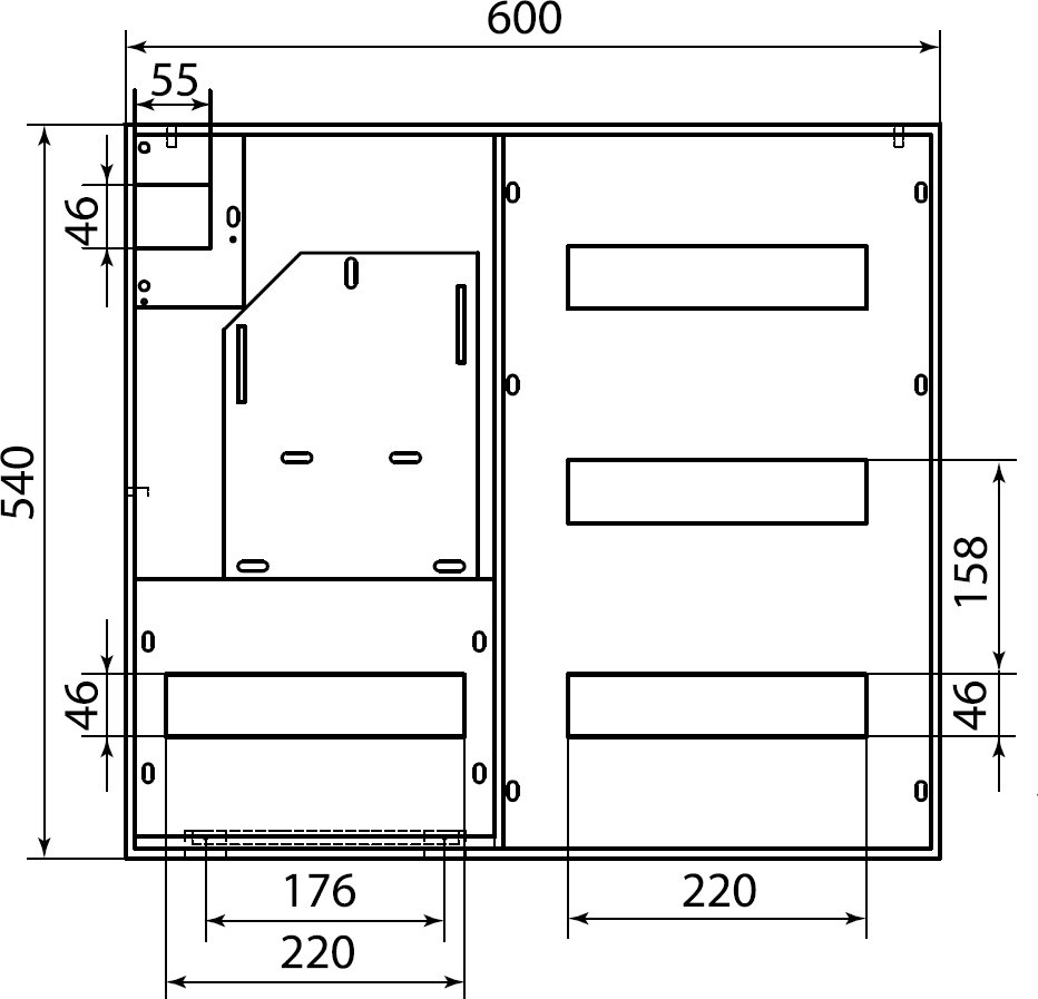
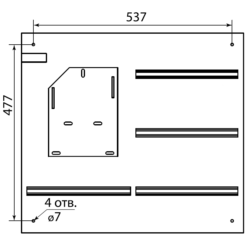
Щит учетно-распределительный навесной ЩУРН-3/48 540х600х165 мм 2-х дверный металлический
Для приема, учёта и распределения электрической энергии напряжением 380/220В 3-х фазного тока частотой 50 Гц.
Для защиты отходящих линий при перегрузках и коротких замыканиях.
Шкаф двудверный применяется в жилом секторе, объектах социально-культурного назначения, торговых и производственных помещениях.
Корпус - сертифицированная российская сталь (ГОСТ).
Покрытие корпуса – текстурированный полиэстеровый порошок.
51 модуль:
• 48 групповых
• 3 под вводной автомат
• Место под счетчик: 1х3ф
Степень защиты: IP31
Цвет: Серый RAL 7035
Высота: 540мм
Ширина: 620мм
Глубина: 165мм
Масса: 10,68 кг
Напряжение: 220В
Толщина материала изделия: 0,8мм
Климатическое исполнение: УХЛ4
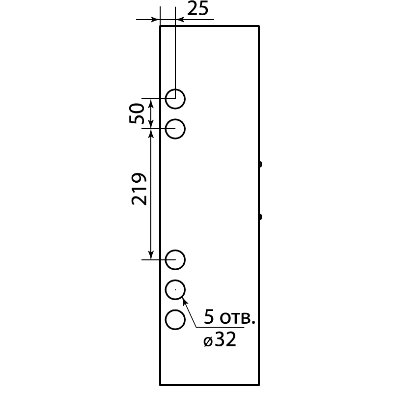
Количество вводов: 5 отверстий D32 мм снизу
Удобство монтажа.
Возможность опломбировки вводного автоматического выключателя.
Высококачественное порошковое покрытие.
Универсальная монтажная панель для установки счетчика.
Отдельная рейка с пломбировочной панелью для вводного автомата.
Элементы заземления, дополнительные кронштейны под шины N, PE, замок окно.
Возможные обозначения: SQ0905-0041, mb23-3/48-2, ETM9765033, ЩРУн-3/48о IP31 двухдверный с окном 580х620х165, 31999, MKM35-N-48-31-ZO, 38400, 30404DEK, ETM9810967, 1113487, Б0030174, ETM6811325, ЩУРн 3/48зо-1 76 УХЛ3 IP31 (16) IEK, 540x600x165, 540*600*165, 580x620x165, 580*620*165
Производитель: TDM Electric (ТДМ Электрик)